2 Familienhaus, Bauj. 1974, ca. 320 m² Wohn- Nutzfläche, Grundst. ca. 800 m²,
ruh. Lage, mit Blick auf den Taunus in Wehrheim Zentrum bei Bad Homburg


Objektlage:
Im Zentrum von Wehrheim bei Bad Homburg befindet sich auf einem Grundstück von ca. 800 m², dieses schöne 2 Familienhaus mit ca. 320 m² Wohn-Nutzfläche, 2 Etagen einem Untergeschoss, Erdgeschoss und Stellplätzen.

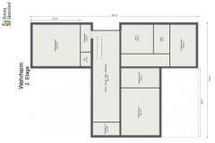
Objektbeschreibung:
Das Untergeschoss kann geteilt werden, ein Teil kann zu dem Erdgeschoss und der andere Teil als separate Wohnung genutzt werden. Im Untergeschoss befinden sich 1 Flur, 1 Bad, 3 Zimmer, Wohn- und Esszimmer. Zu der separaten Wohnung gehören dann Schlafzimmer, Bad, großes Ess- und Wohnzimmer. Von dem Wohnzimmer können Sie direkt auf die Terrasse gehen, Ihre Freizeit genießen und sich an dem schönen Garten erfreuen. Der Eingang zur separaten Wohnung im Untergeschoss ist über einen eigenen Zugang von der Zuwegung über die abschließbare Terrassentür.
Im 1. Obergeschoss befinden sich 1 hochwertiges Tageslichtbad mit Dusche, Badewanne, WC Anlage und einen, 1 Rohrheizkörper, 2 Zimmer, 1 Küche mit Abstellraum und Ausgang zu dem gepflegten Hof, 1 Wohn- und Esszimmer mit anschließender Terrasse. Von dort können Sie auf den Taunus und Ihren Garten blicken.

Ausstattung:
Das Haus wurde 2022/2023 total renoviert. Auf den Böden ist Laminat oder Feinsteinzeug / Marmor verlegt, der Flur, die Bäder und Treppen sind Feinsteinzeug / Marmor gefliest. An allen Fenstern sind Rollläden. Dieses Gebäude wird mit einer Ölheizung Baujahr 1991 geheizt, eine Wärmepumpe wird noch eingebaut.
Erwerbs- und grundstückbezogene Nebenkosten (wie Hausanschlüsse) sind im Angebot nicht enthalten.

Sonstiges:
Das Apfeldorf Wehrheim liegt etwa 30 km von Frankfurt entfernt, landschaftlich reizvoll im Hochtaunuskreis und besteht aus den Ortsteilen Obernhain, Pfaffenwiesbach und Friedrichsthal. Die Bevölkerungszahl von Wehrheim gesamt beträgt derzeit ca. 9000 Einwohner, wächst aber stetig, da Neubaugebiete neue Bewohner anziehen.

Die Kaufkraft liegt mit einem Index von rund 200 an der Spitze Hessens damit also auf dem Niveau von Königstein, Kronberg im Taunus, Bad Homburg vor der Höhe und Bad Soden am Taunus.
Wehrheim liegt zentral. Die Bahnhöfe Wehrheim und Saalburg sind knapp ein Kilometer entfernt. Von dort aus ist man mit der Taunusbahn in etwa 15 Minuten in Bad Homburg und in ca. 30 Minuten in Frankfurt am Main. Nach ca. 7 km sind Sie an der Autobahnauffahrt zur A5 Friedberg / Friedrichsdorf und nach ca. 6 km in Bad Homburg.

In der Nähe befinden sich viele Rad- und Wanderwege, das schöne Weiltal, der Hessenpark, die Saalburg und der Freizeitpark Lochmühle. Hier können Sie Ihre Freizeit genießen und sind schnell in der Metropole Frankfurt am Main.

Fläche:                Grundstück ca. 800 m², Wohn- Nutzfläche ca. 320 m²
Kaufpreis:         1.300.000,- €
Courtage:          2,98% inkl. Mehrwertsteuer

Angebot als PDF anzeigen